Villa E

August 2021
Location: Vienna, Austria
Principal use: single family home
Total floor area: 200 m2
Site area: 800 m2
Number of stories: 2


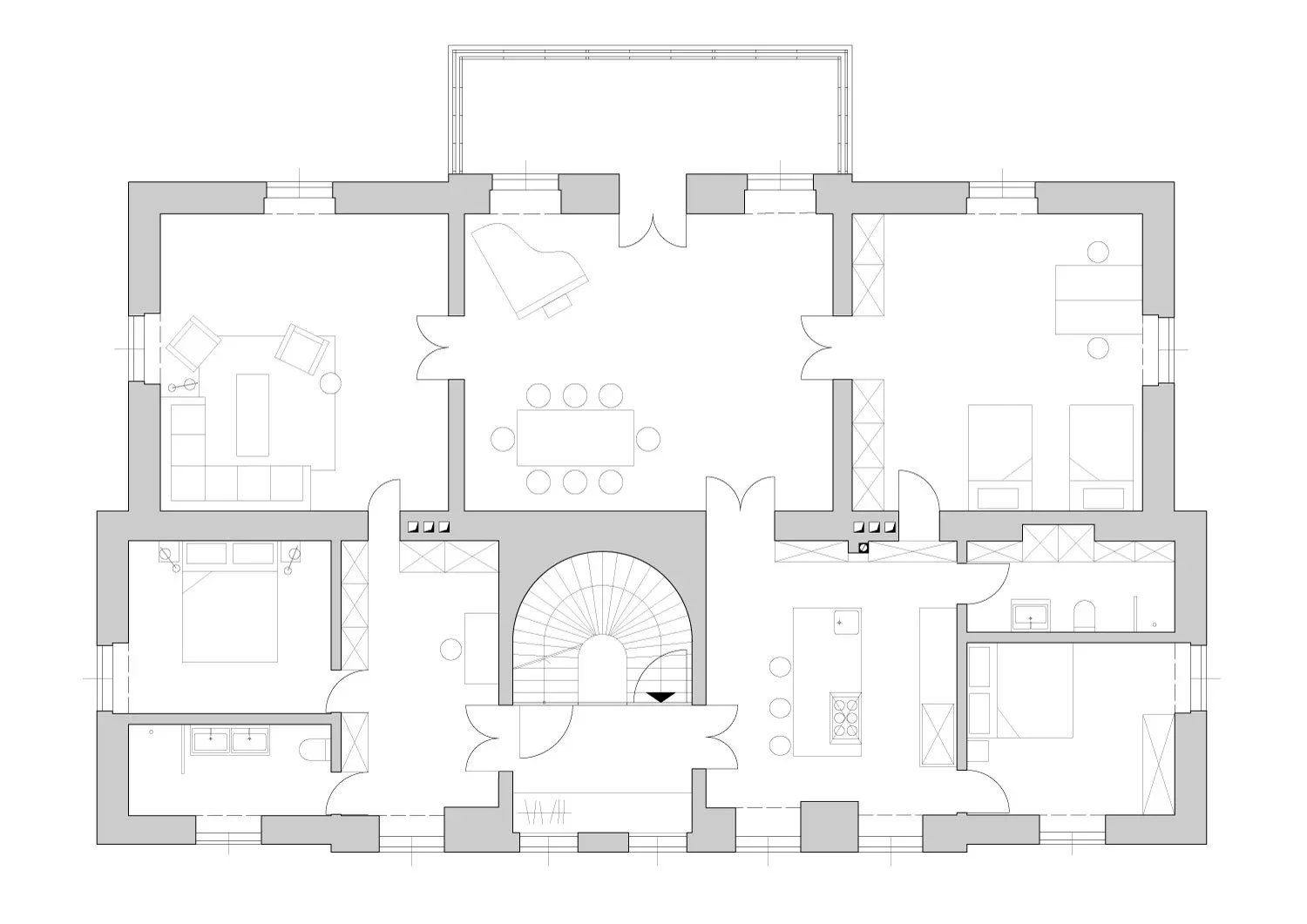
Villa E in the hills of Vienna’s Grinzing neighborhood entailed a complete gut-renovation of the top floor of a 19th century villa. The patterned wood Tafelparkett, combining small ash and oak tiles, pays homage to decorative fin-de-siècle floors. The kitchen features a material datum line separating storage areas and a colorful granite island.

Photos by Vilma Pflaum

Back to Work