Stadtkino + Ludwig & Adele

November 2022
Vienna, Austria
Restaurant / Cinema Lobby
December, 2022
Total floor area: 350 m2
Number of stories: 2

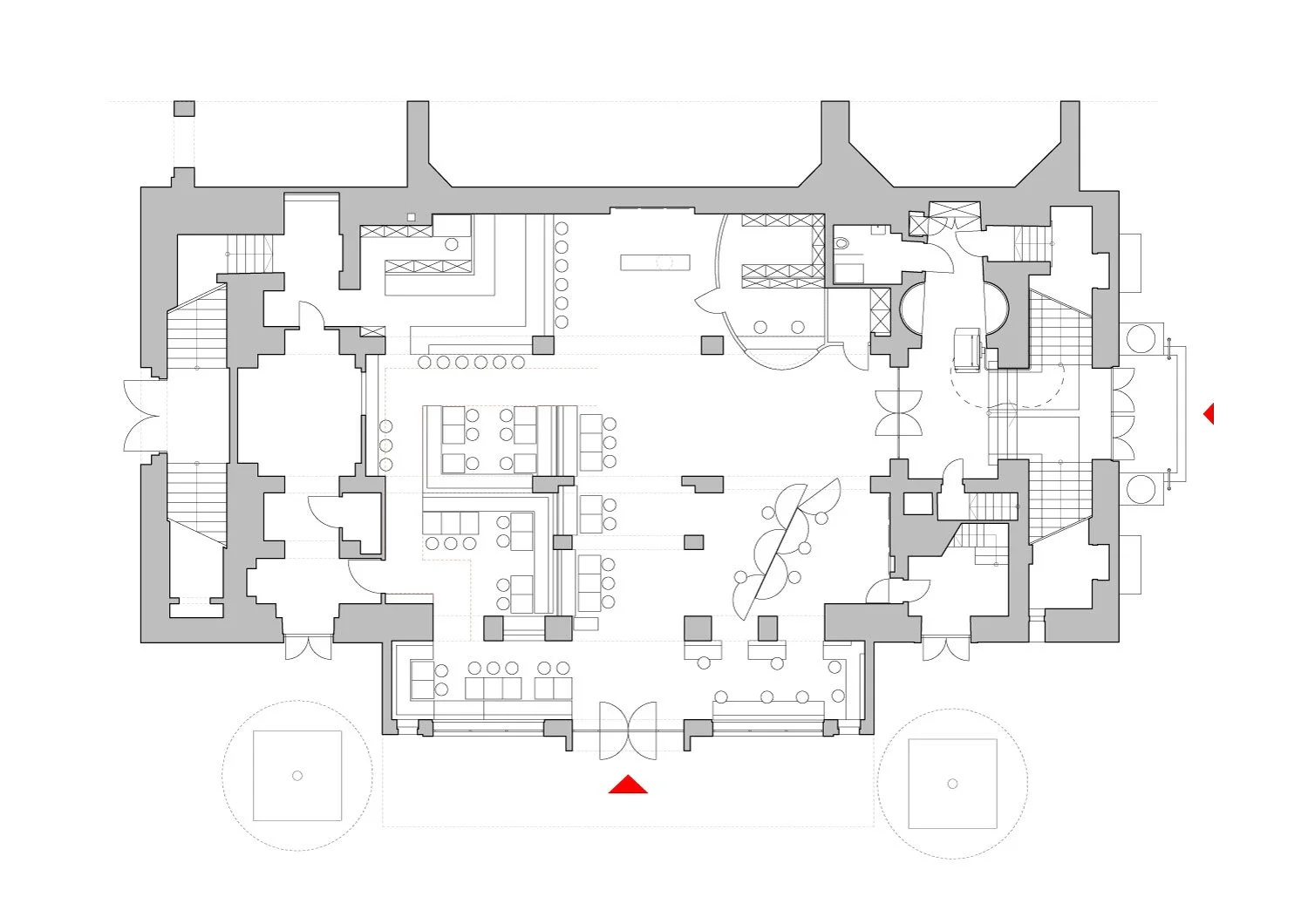
Stadtkino is one of Vienna’s most important art house cinemas. Ludwig & Adele is a restaurant run by one of the city’s most exciting gastronomy teams. The stellar combo plus the Albertina Modern Museum occupy the historic Künstlerhaus, one of the first buildings on the Ringstrasse, steps away from the Wiener Musikverein, the Wien Musem, the Kunsthalle, and the Secession, all in all adding up to one of the capital’s most vibrant cultural clusters. The western ancillary exhibition hall was converted into a cinema in the mid-century. To accommodate the new program, the original hall was divided in two floors. The upper, more generously proportioned floor houses the cinema while the ground floor, more squatly proportioned, houses the foyer, restaurant, and kitchen. The main entrance was shifted to the side, away from the ornamental portico. A double height vestibule was added in a Modernist style. Our design for the ground floor had to contend with two challenges: to respond to the awkward spatial qualities resulting from the original cinema conversion seventy years ago, and to organize a space shared by two, very different tenants. Without creating absolute boundaries that would sacrifice the openness of the space, the plan locates the restaurant and the foyer in distinct zones relative to a crossing of circulation axes leading from the entrance to the cinema. Floor, wall, and ceiling surfaces, as well as shared infrastructure such as light fixtures and signage are uniform. Columns and beams along the two main structural axes are clad in mirrored panels in order to diminish the presence of static elements as well as to distort the perception of the space. To reinforce difference and location in program, furnished elements perform as particular insets, coded in a specific material palette and geometry. The cinema counter is a rounded volume curving bellow a structural beam, clad in blue mirrored strips. Modular, stackable benches in the shape of circle segments, articulated in blue leather and blue waffle board, populate the foyer waiting area. The benches can be arranged in a variety of configurations and can be packed away as a stack in an existing hallway niche of a complementary shape. The restaurant, by contrast, is composed of oak benches, tables, and chairs with upholstered tubular accents in light brown. The bar and the service stations are a mixture of oak and beige corian. A cantilevered, metallic DJ booth, shared by both tenants presents itself as a material anomaly between two worlds.   

Photos by Vilma Pflaum

Back to Work