August 2024
Location: Vienna, Austria
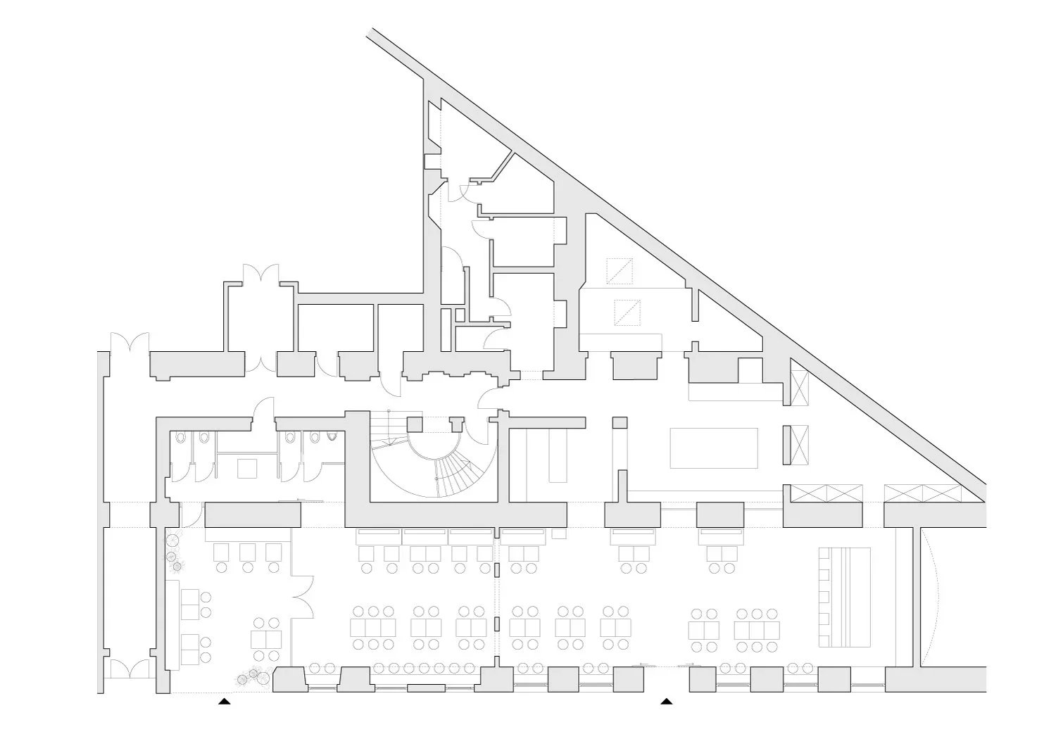
Principal use: Restaurant
Total floor area: 300 m2
Number of stories: 1

Presented with the challenge of a large volume and a modest budget, an economy of moves and a thrifty material palette dictated our approach to re-designing Asia Pavillon, the long standing family-run restaurant in Vienna's Favoritenstrasse. As the restaurant passes from one generation to the next, the clients were keen to anchor the business, which continues to offer high quality home-style Chinese food, to a vibrant urban intersection between a residential neighborhood, two major thoroughfares, and the heart of Vienna's Technical University campus. As a result, the design maintains a pedestrian connection to the street: it is inspired, on the one hand, by the culinary culture and informality of East Asian night markets, while on the other hand, it is firmly rooted in an immediate Viennese urban context. To reinforce the latter aspect, the neighboring facades were abstracted and re-mapped in the interior walls, dividing rhythm, apertures, and ornament between standard materials and unadorned surfaces (tiles, spackle, paint, acoustic foam). The varied surfaces subdivide the space in unexpected and seemingly indeterminant ways. The lower register of the space is populated by blue, generic Chinese market stools and complimentary blue tables. At one end of the long space a tiled bar broadcasts the offerings at hand in a hanging light box, again referencing the world of the market. At the opposite end, as if in defiance of the norm, a gathering of potted plants commune undisturbed by the surrounding pale geometries. The atmosphere, part canteen, part market stall, part restaurant, provides a fluid backdrop for animated chatter among students, neighbors, friends, and a constant shuffle of waiters coming in and out of the kitchen with teetering trays.



Photos by 
Vilma Pflaum

Asia Pavillon

Back to Work