House Boafo

January 2020
Location: Accra, Ghana
Principal use: private home, artists studio, gallery
Site area: 550 m²
Total floor area: 600 m²
Number of stories: 2


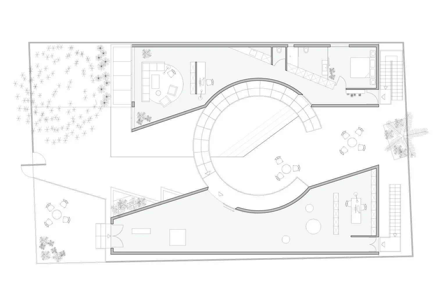
We were asked by the artist Amoako Boafo to develop a hybrid typology that brings together a home, a painter's studio, a gallery, and facilities for three artists-in-residence. The project was motivated by the artist's desire to return to Accra with the mission of bringing a newfound energy to the city's art scene. A lack of contemporary art venues and opportunities for exchange between local and foreign artists was as important to Mr. Boako as his need to establish his studio in his homeland after long periods of being abroad. The house is a located in Accra's Osu neighborhood, an area defined by an orthogonal city grid and access to the seaside. The house consists of two volumes interacting through slight shifts in geometry. The artist's house and studio occupy one volume while the residences, dining areas, and public gallery occupy the other. At the center of the courtyard, a circular stair leads from the pool to the public gallery. By hybridizing public and private programs, the house had to become something new, something more that a mere dwelling. Rammed earth walls and galvanized steel platforms and railings combine to form a  sculpted environment that is at once rigid yet earthbound and free.

Back to Work