February 2007
Location: Vienna. Austria
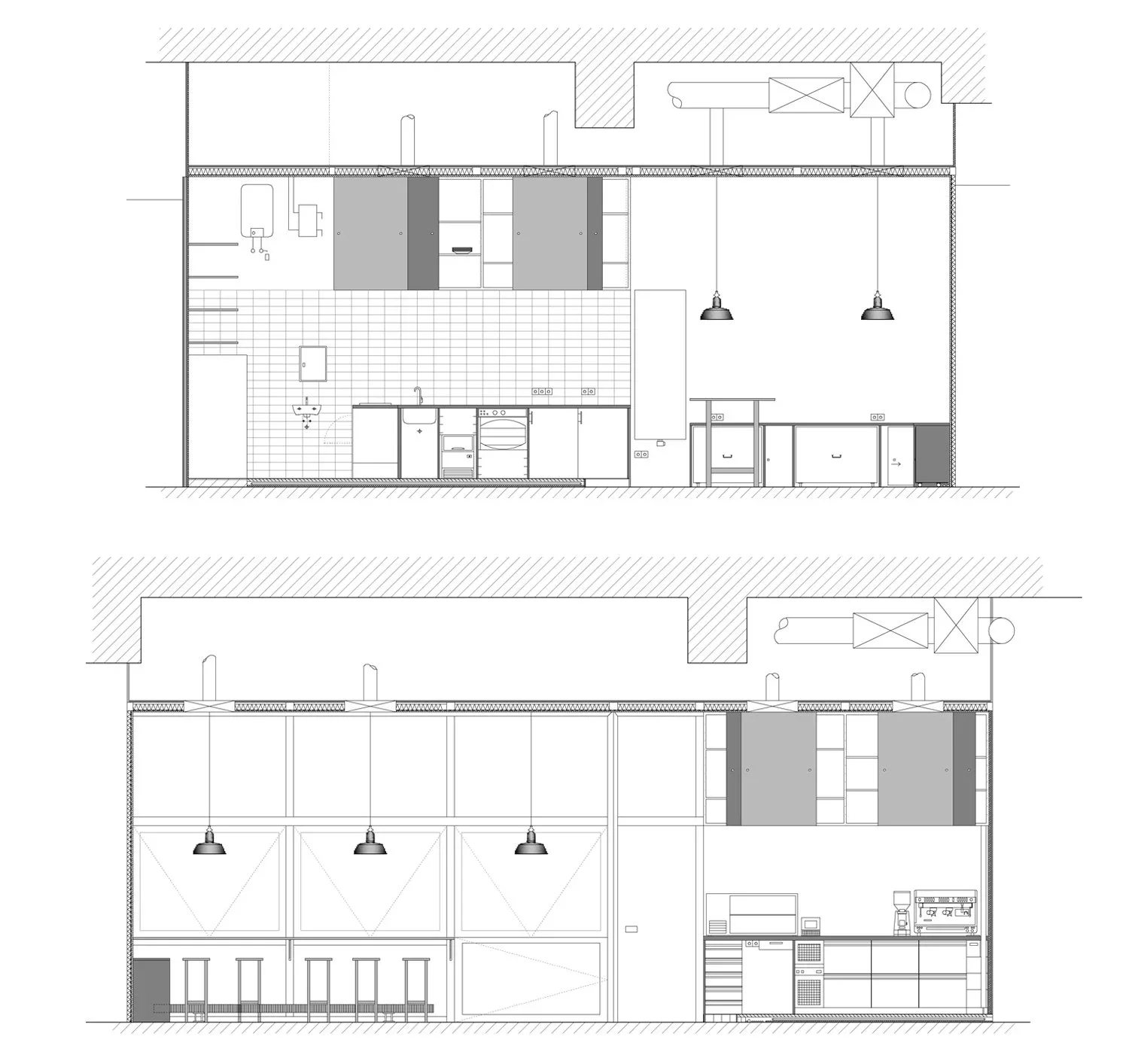
Principal use: Coffee shop
Total floor area: 25 m2
Number of stories: 1


Nominated for Adolf Loos Staatspreis für Design 2007

Won in a closed competition, the Kaffeekueche coffee shop was designed to occupy a small corner in Vienna's busy Schottentor tram and subway station. The client was intent on applying his business philosophy of using quality, handmade goods to the architecture. This was translated into an intimate and understated space where few things are concealed from sight and where the haptic qualities of drinking and brewing coffee are exhibited. The storefront facade was developed as a foldable market stall, allowing the shop to be seasonally flexible. As a tight 23 square meter corner condition, the shop uses black surfaces to mute shadows thus amplifying the perception of space. 


Photos by Stefan Zenzmaier

Kaffeeküche

Back to Work