April 2022
Location: Vienna, Austria
Principal use: single family home
Total floor area: 390 m2
Site area: 520 m2


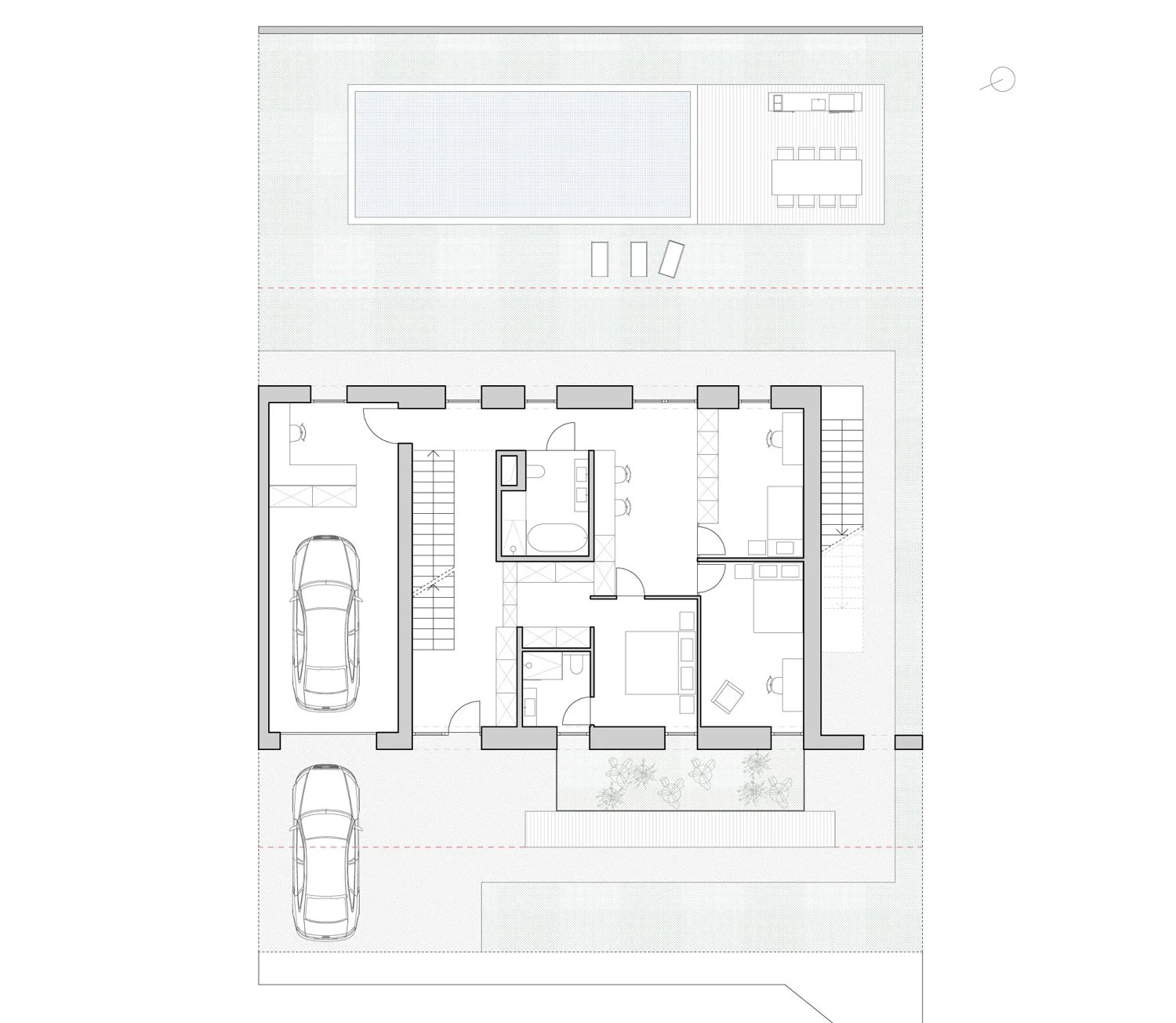
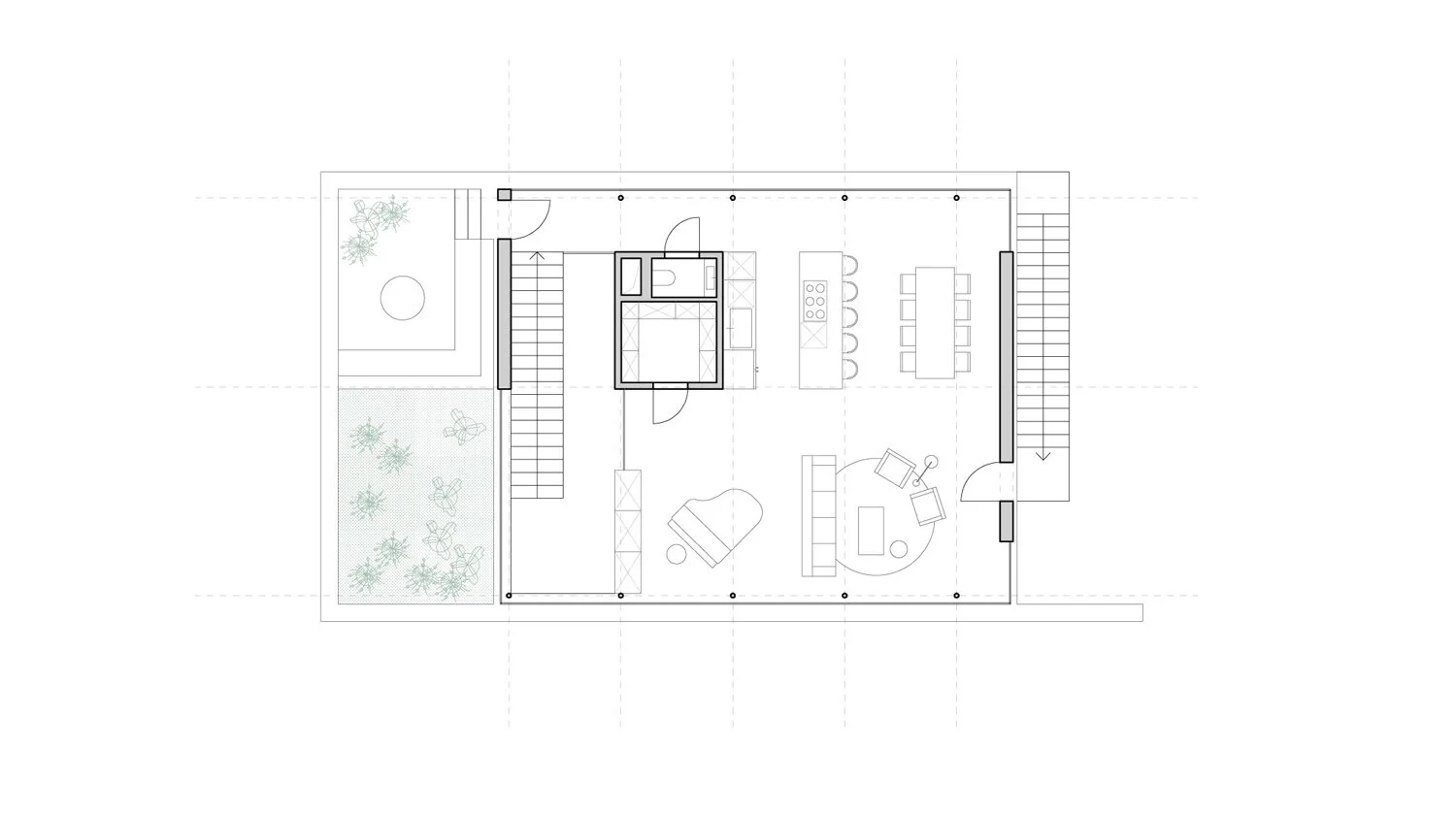
A meadow bound by old growth oaks and sycamores and the curving meander of the Weidlinger creek sets the stage for conversation between two volumes. On the street side a fully restored Biedermeier house faces a newly built garden pavilion. Together, connected by a glazed vestibule, they form a single residence. Set back from the street, the house presents a three-tiered elevation: plinth, glass, and gable. The shared areas occupy the upper floor and are left as open as possible. Large sliding glass panels open to the garden and street, with the neighboring park beyond. The bedrooms and study are on the ground floor with direct access to the back garden. The basement houses and office, sauna, and small gym.

House T

Back to Work