Dreyhausenstrasse

March 2019
Location: Vienna, Austria
Principal use: School
Site area: 2000 m2
Total floor area: 8300 m2
Number of stories: 7
Competition: Honorable Mention


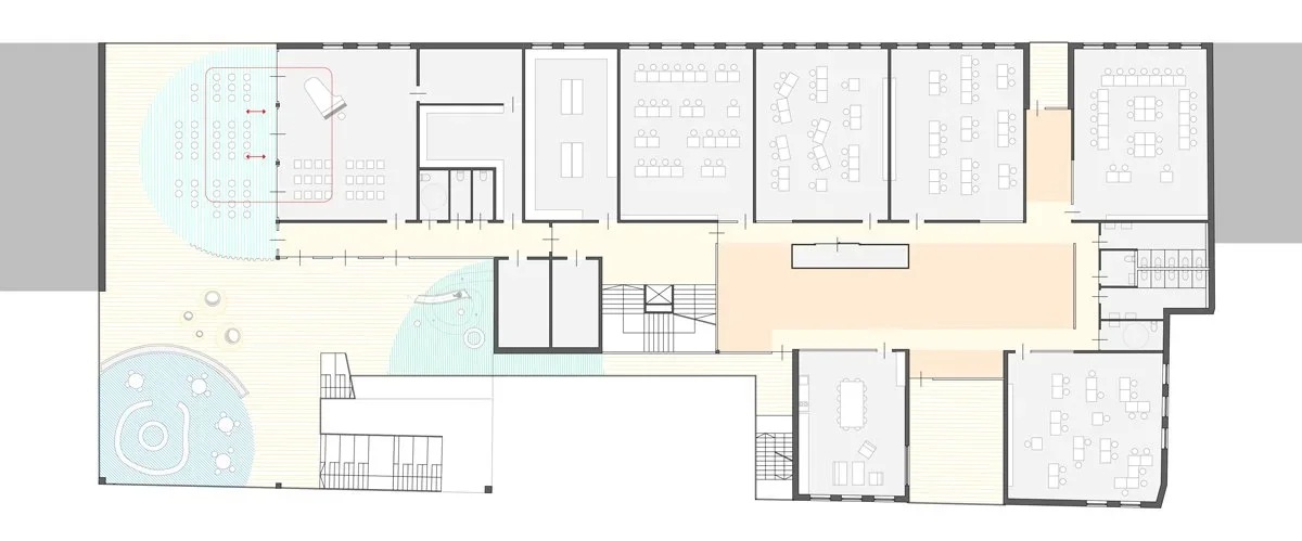
A new school on the Dreyhausenstrasse in Vienna’s 14th district will be wedged between two party walls and a tight courtyard that is linked to an existing school building dating from the beginning of the 20th century. Our proposal is based on a series of interior and exterior terraces that de-materialize the compressed building mass. While the street façade retains a taught geometry with exceptional punctures and cut-outs, the courtyard façade features an unravelling fire stair that culminates in a gestural rooftop playground. Along the fire stair, generous terraces lead to learning clusters in the building. The ground floor is organized around a multi-purpose hall, cafeteria, and library. Sport facilities are below grade and along with the ground floor program can be used during off-hours by the community.

Landscape Architecture: Lindle + Bukor
Structural Engineering: Werkraum Ingenieure
Climate Engineering: Exikon, Ulrich Pont
Fire Proofing: IMS Brandschutz

Back to Work